Skoči na sadržaj

AGB PRIHVATNIK ZA DRVENA VRATA- sa ravnim nastavkom i oblim čelom 22mm Sicurezza

Konačna cena 140 RSD - Konačna cena 274 RSD
Konačna cena
140 RSD
140 RSD - 274 RSD
Trenutna cena 140 RSD

Opis:

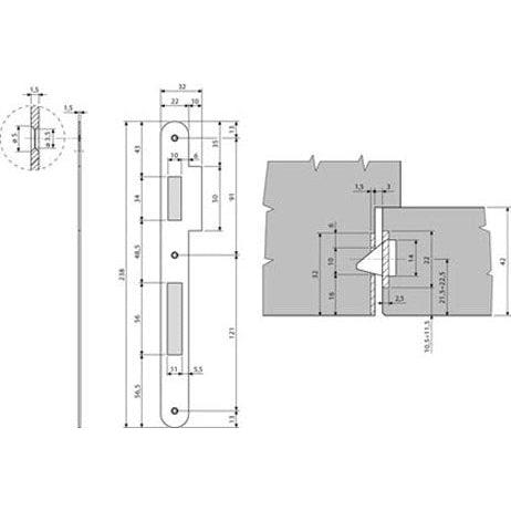
Metalni zaobljeni prihvatnik , širine 22mm i dužine 238mm. Zakošeni nastavak je u delu gde gornji jezičak brave ulazi u prihvatnik. Na ovaj način sprečava oštećenje štoka. Prihvatnik je reverzibilan i koristi se za leva i desna vrata. Uglavnom se ugrađuje za vrata bez falca.

Montaža:

Pripremiti štok vrata prema dimenzijama sa dijagrama. Prihvatnik se ubacuje u frezovani deo na štoku i montira se sa tri vijka 4,5 x 25mm.



Prodavnica Hoba ulaže sve napore da boje artikala na internetu budu što sličnije bojama u prirodi. Ipak, zbog različitog prikaza na uređajima, boje koje dobijete mogu se delimično razlikovati od onih na ekranu.